JD体育,JD体育反波胆,JD体育俱乐部

品深餐飲全案設計

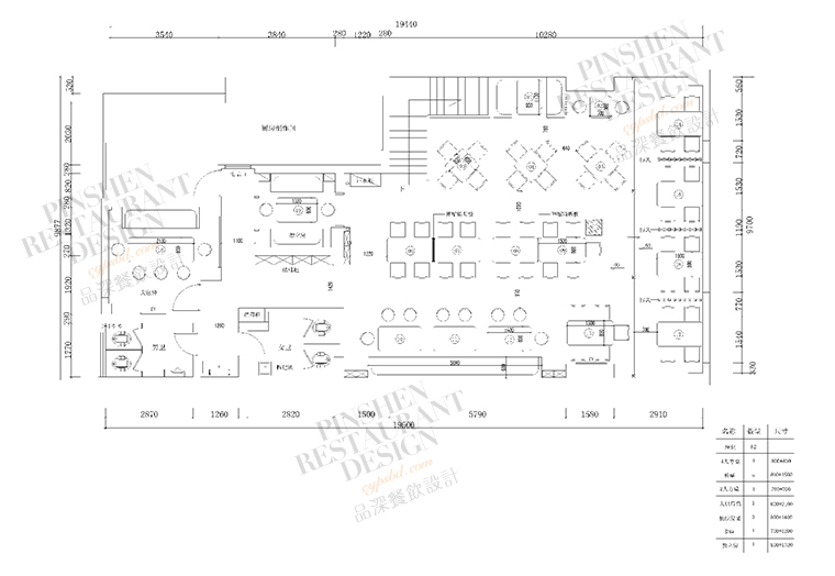
海口現拌烤肉店餐飲空間全案設計


餐飲品牌:炙成一派
項目坐標:海口
餐飲類型:現拌烤肉、夜宵燒烤、烤串啤酒
項目面積246平方米
工作內容:??谑准抑俗涌救饪臻g裝飾裝修設計、烤肉店軟裝設計、烤肉店品牌形象植入、門店平面布局設計、烤肉店門店燈光設計。








項目概述:炙成一派是??谝患乙袁F拌現烤為特色的炙子烤肉店。品深餐飲全案策劃設計認為空間裝飾裝修設計是品牌形象整體落地的核心環節。





品深餐飲設計在整個空間裝飾設計中,我們貫徹“讓消費者能放松心情,享受美食,有情懷,有情調,有趣味”。通過空間中大面積天空藍的使用,與我們傳達的新鮮,干凈、現拌的出品特質完美契合,使用藍色刻意營造舒適,純凈的用餐氛圍;



木質座椅、絲帶燈光可以營造很好的用餐氛圍;空間中各種文案的上墻使用,體現了烤肉夜宵文化、啤酒擼串的屬性;不銹鋼材質的使用,也能傳達炙子烤肉新鮮現拌的核心賣點。
 





 
項目落地成效:
客流穩定,經營業績穩定;
空間氛圍舒適,形象獨特,消費者非常認可。
 

專注于餐飲品牌全案策劃設計

服務支持

我們珍惜您每一次在線詢盤,有問必答,用專業的態度,貼心的服務。

讓您真正感受到我們的與眾不同!

Link: JD体育俱乐部国际| JD体育反波胆投资官网,JD体育反波胆有限公司,JD反波胆俱乐部官方网站 | JD Sportbook Taruhanlawan,JD体育反波胆APP下载,JD反波胆|football lay bet | JD Sports Global反波胆APP下载,JD体育反波胆官网,JD反波胆俱乐部APP下载 | JD体育俱乐部(反波胆)有限公司 | JD体育反波胆登录网址| 盛帆娱乐【Sbobet】|体育博彩公司|乐游国际官方网站 | JD体育反波胆,JD反波胆俱乐部官方网站,JD反波胆|football lay bet | JD体育反波胆|Sportbook Taruhanlawan| JD Sportbook Taruhanlawan,JD体育反波胆官网,JD国际反波胆 | sbobet利记app手机注册| JD体育,JD体育反波胆,JD体育俱乐部 | JD体育反波胆APP下载| 利记sbobet(亚洲)集团| 盛帆娱乐【Sbobet】|体育博彩公司|乐游国际官方网站 | JD体育俱乐部反波胆,JD反波胆有限公司,JD Sports Global | JD体育反波胆平台| JD体育反波胆官网,JD亚洲国际,JD国际(反波胆)有限公司 | JD国际体育反波胆,JD国际(反波胆)有限公司,JD反波胆俱乐部投资官网 | JD体育反波胆APP下载| JD体育反波胆投资官网,JD国际(反波胆)有限公司,JD反波胆APP下载 JD体育反波胆官网,JD亚洲国际,JD国际(反波胆)有限公司 | JD体育反波胆俱乐部APP下载| 利记sbobet股份有限公司| JD Sportbook Taruhanlawan,JD体育反波胆官网,JD国际反波胆 | JD Sports Global反波胆APP下载,JD体育反波胆官网,JD反波胆俱乐部APP下载 | 利记sbobet(app)首页登录| JD Sports Global反波胆APP下载,JD体育反波胆官网,JD反波胆俱乐部APP下载 | JD体育俱乐部反波胆-JD反波胆平台APP下载 | 盛帆娱乐【Sbobet】|体育博彩公司|乐游国际官方网站 | JD体育反波胆官网,JD亚洲国际,JD国际(反波胆)有限公司 | JD体育反波胆平台入口,JD反波胆俱乐部APP下载,JD国际体育反波胆 JD Sports Global,JD亚洲国际体育反波胆,JD体育反波胆平台 | 利记sbobet的投注网站 | JD Sports Global有限公司,JD亚洲国际体育反波胆,JD Sportbook Taruhanlawan | JD Sports Global反波胆APP下载,JD体育反波胆官网,JD反波胆俱乐部APP下载 | JD体育,JD体育反波胆,JD体育俱乐部 | sbobet网址-利记sbobet注册登录| JD体育俱乐部反波胆| JD国际体育反波胆,JD体育反波胆APP下载,JD体育反波胆投资官网 | JD体育国际亚洲反波胆平台| JD体育反波胆APP下载| JD体育,JD体育反波胆,JD体育俱乐部|